1763 Country Club Dr
Long Grove, IL 60047

Scroll to Content

Details

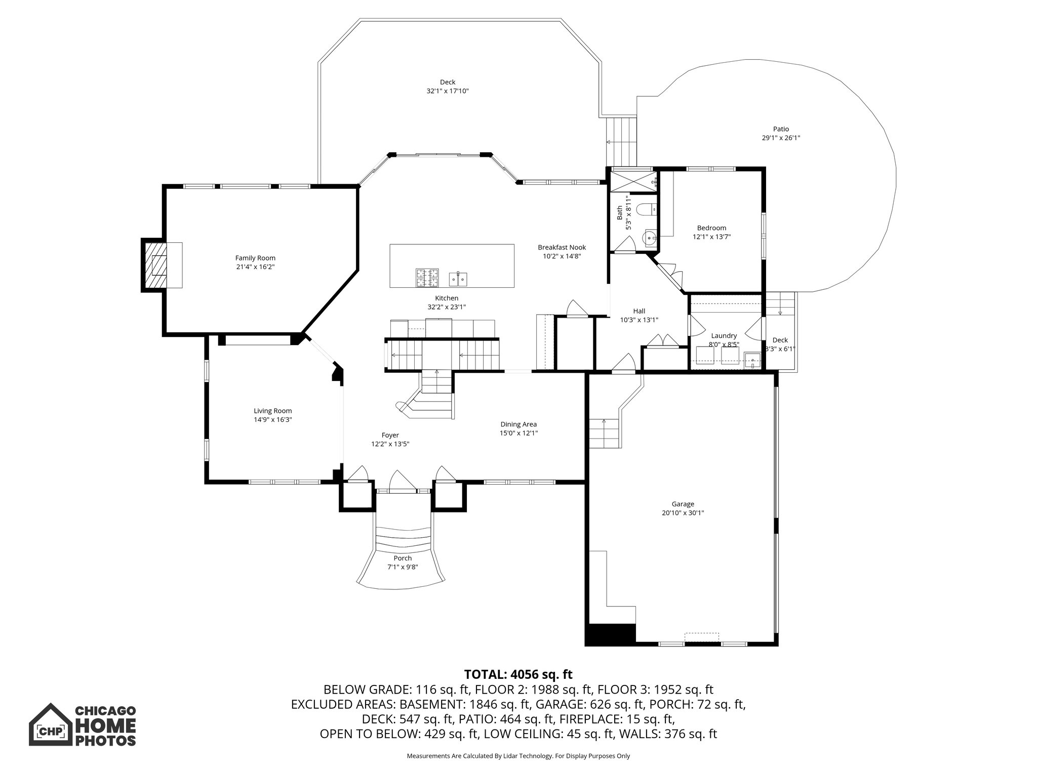
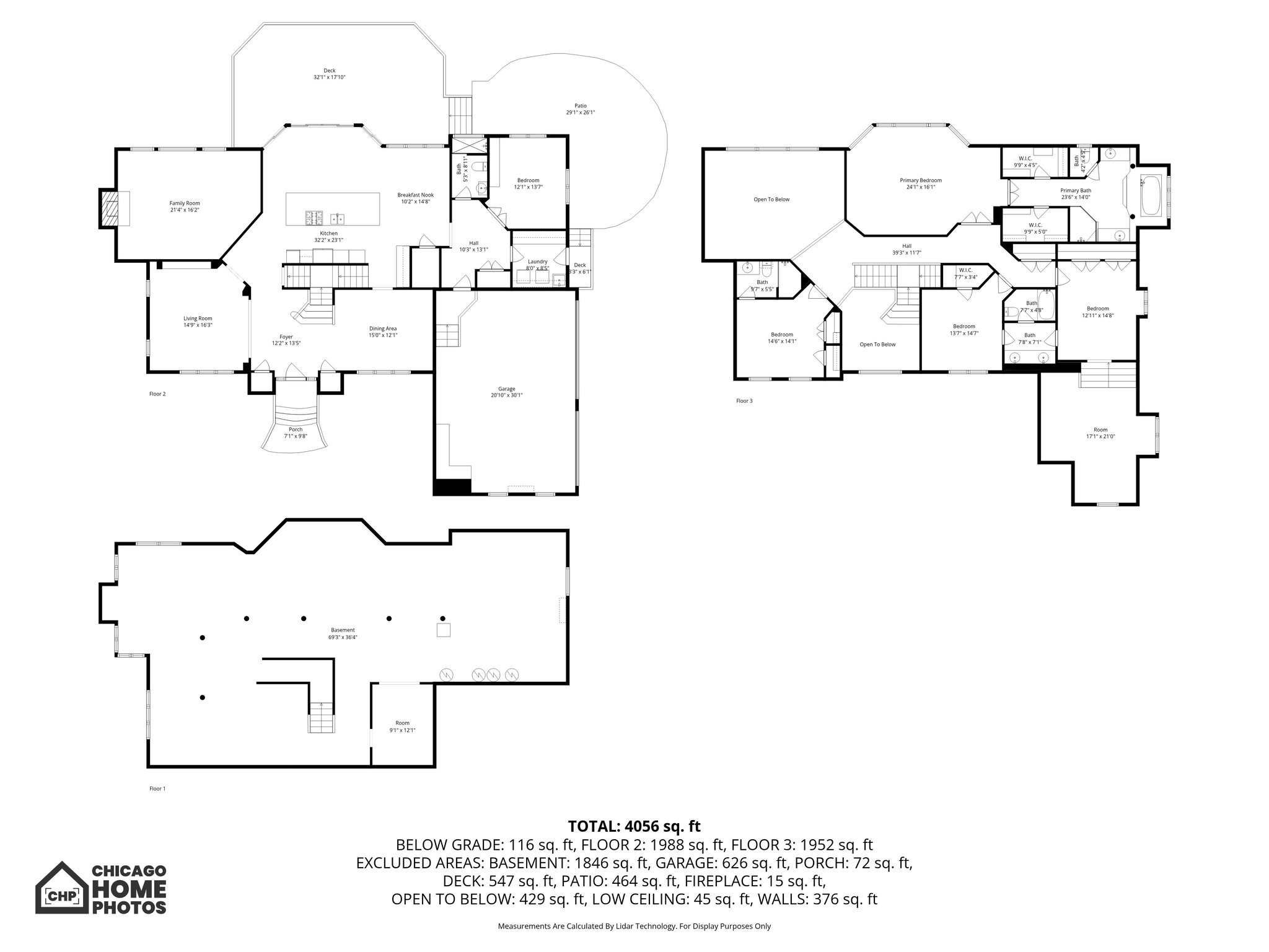
This 4,030 SQFT Long Grove home has incredible potential and is awaiting your design ideas to revive it's former grandeur. Enjoy sunrises every morning with beautiful views across 1.5 acres along with serene sounds of wildlife from the pond area. Guests are first welcomed into an inviting 2 story foyer with symmetrical coat closets and flanked by formal living/dining rooms with curved archways. The family room is sure impress with a handsome fireplace mantle which stretches up to the tall cathedral ceilings. Perfect panoramic views from the kitchen through wall-to-wall glass doors/windows. The first floor features a convenient laundry/mud room and an office that could easily be converted into a 5th bedroom with the adjacent full bathroom nearby. Up on the second floor, all 4 bedrooms feature trey/vaulted ceilings and access to a full bathroom. The master bedroom features a decorative alcove and magnificent trey ceiling with molding for ambient rope lighting. The master bathroom boasts a vaulted ceiling, dual walk-in closets with custom organizers, dual vanities, jetted bathtub, and a proper shower with 4 sprayers and built-in seat. The second bedroom is another en-suite with full private bathroom and the 3rd/4th bedroom share a Jack and Jill bathroom featuring another vaulted ceiling. The full English basement offers plenty of open space to accommodate your future dream plans including 8' and 9' ceilings, a roughed in bathroom and fireplace. High efficiency HVAC including 2 water heaters, 2 furnaces and 2 air conditioners. The updated composite roof is an expensive upgrade offering peace of mind for many, many years! Award winning schools in Kildeer Countryside School District #96 and Stevenson High School #125. Excellent location in the Country Club Meadows neighborhood just 1 block away from the recently renovated 408 acre Buffalo Creek Forest Preserve, 1 mile from IL-53 for commuting, and 2 miles from shopping at the Deer Park Town Center. The current HOA dues are $320 per year which may increase to $395 per year if the Flock cameras are approved by the village. The seller does not provide a survey or well/septic inspection. Tax proration 100%. Sold as is.

  • $1,000,000
  • 4 Bedrooms
  • 4 Bathrooms
  • 4,030 Sq/ft
  • Lot 1.55 Acres
  • 3 Parking Spots
  • Built in 1997
  • MLS: 12498087

Images

Floor Plans