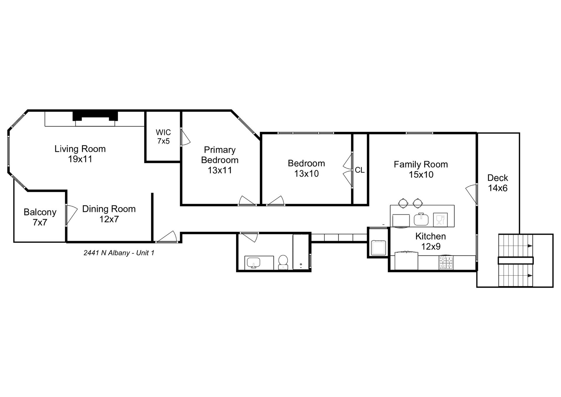
2441 N Albany - Unit 1
2441 N Albany - Unit 1